流山市東深井(売買 中古一戸建て) | 流山市大字東深井 | 千葉県船橋市・首都圏エリアの不動産売買・住宅情報はセンチュリー21 ベストランド

流山市東深井 | 流山市大字東深井の不動産物件

●ハウスメーカー施工! ●軽量鉄骨造の中古戸建!
【中古一戸建て】 NEW! オススメ 駐車場あり
価格 2,980万円 (税無)
東武鉄道野田線 江戸川台駅 徒歩18分
スマホ表示
物件コード:087601-80212
所在地 建物面積
土地面積
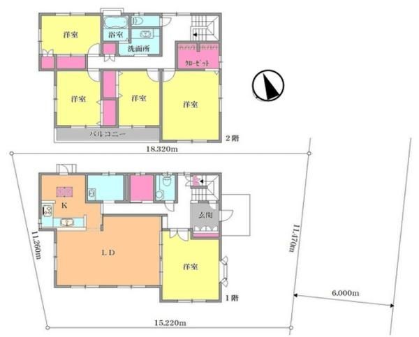
間取り 築年月
千葉県流山市大字東深井 163.68m2
191.20m2
5SLDK 1993/06

物件基本情報

物件種目 中古一戸建て
物件名称 流山市東深井
所在地 千葉県流山市大字東深井
交通
東武鉄道野田線 江戸川台駅 徒歩18分
階数 2階建
建物構造 軽量鉄骨造
建ぺい率/容積率 50% / 100%
駐車場 有 (1台)
学校 東深井小学校 / 東深井中学校
設備・条件
  • ガス:都市ガス
  • 汚水:公共下水
  • 水道:公営水道
  • フローリング
  • システムキッチン
  • ガスコンロ
  • 床下収納
  • コンロ三口
  • シャワー
  • バルコニー
  • トイレ2ヶ所
センチュリー21ベストランド
Tel047-456-3031
お気軽にお問い合わせください。

周辺地図

地図を表示中...
ストリートビュー未対応エリアです。

物件詳細情報

物件用途 居住用 地目 宅地
間取り詳細 - 都市計画 市街化区域
建物向き - 用途地域 第一種低層住居専用地域
土地面積基準 公簿 接道 公道 南東 幅員6m
土地権利 所有権 私道面積 -
借地条件 - 道路位置指定 -
地代 - 不適合接道 -
建築確認番号 - セットバック -
現況 空家 国土法届出 不要
引渡時期 相談 取引態様 仲介
設備その他 -
特記事項 星和江戸川台地区地区計画、星和江戸川台自治会会則あり
備考 -
公開日 2026/04/13 広告有効期限 2026/04/27
電話でお問い合わせ
センチュリー21ベストランド 店舗情報
[所在地] 千葉県船橋市芝山2-2-1-101
[営業時間] 9:00~18:00
Tel047-456-3031
お気軽にお問い合わせください。