八千代市八千代台北14丁目 全2棟 A号棟(売買 新築一戸建て) | 八千代市八千代台北 | 千葉県船橋市・首都圏エリアの不動産売買・住宅情報はセンチュリー21 ベストランド

八千代市八千代台北14丁目 全2棟 A号棟 | 八千代市八千代台北の不動産物件

●全室南西向き!2階全室6帖以上! ●カースペース2台可(車種制限有)!
【新築一戸建て】 NEW! オススメ 新築 駐車場あり
価格 3,790万円 (税込)
京成電鉄本線 八千代台駅 徒歩19分
スマホ表示
物件コード:087601-80072
所在地 建物面積
土地面積
間取り 築年月
千葉県八千代市八千代台北 97.92m2
127.64m2
4LDK 2026/06

物件基本情報

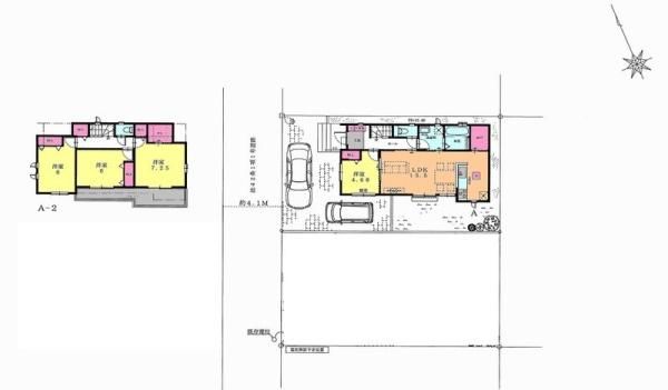
▲B号棟(3,790万円)間取り
物件種目 新築一戸建て
物件名称 八千代市八千代台北14丁目 全2棟 A号棟
所在地 千葉県八千代市八千代台北
交通
京成電鉄本線 八千代台駅 徒歩19分
階数 2階建
建物構造 木造
建ぺい率/容積率 50% / 100%
駐車場 有 (1台)
学校 八千代台小学校 / 八千代中学校
設備・条件
  • ガス:都市ガス
  • 汚水:公共下水
  • 水道:公営水道
  • フローリング
  • システムキッチン
  • ガスコンロ
  • Wクローゼット
  • 床下収納
  • コンロ三口
  • シャワー
  • バルコニー
  • トイレ2ヶ所
センチュリー21ベストランド
Tel047-456-3031
お気軽にお問い合わせください。

周辺地図

地図を表示中...
ストリートビュー未対応エリアです。

物件詳細情報

物件用途 居住用 地目 宅地
間取り詳細 - 都市計画 市街化区域
建物向き - 用途地域 第一種低層住居専用地域
土地面積基準 実測 接道 南西 幅員4.1m
土地権利 所有権 私道面積 -
借地条件 - 道路位置指定 -
地代 - 不適合接道 -
建築確認番号 第111111号 セットバック -
現況 建築中 国土法届出 不要
引渡時期 相談 取引態様 仲介
設備その他 -
特記事項 駐車場:他軽車両1台駐車可
備考 -
公開日 2026/05/01 広告有効期限 2026/05/15
電話でお問い合わせ
センチュリー21ベストランド 店舗情報
[所在地] 千葉県船橋市芝山2-2-1-101
[営業時間] 9:00~18:00
Tel047-456-3031
お気軽にお問い合わせください。