鎌ケ谷市くぬぎ山3丁目(売買 中古一戸建て) | 鎌ケ谷市くぬぎ山 | 千葉県船橋市・首都圏エリアの不動産売買・住宅情報はセンチュリー21 ベストランド

鎌ケ谷市くぬぎ山3丁目 | 鎌ケ谷市くぬぎ山の不動産物件

●リフォーム中 ●北×東角地! ●敷地面積広々70坪超
【中古一戸建て】 NEW! オススメ 駐車場あり
価格 4,480万円 (税込)
京成電鉄松戸線 くぬぎ山駅 徒歩8分
スマホ表示
物件コード:087601-79902
所在地 建物面積
土地面積
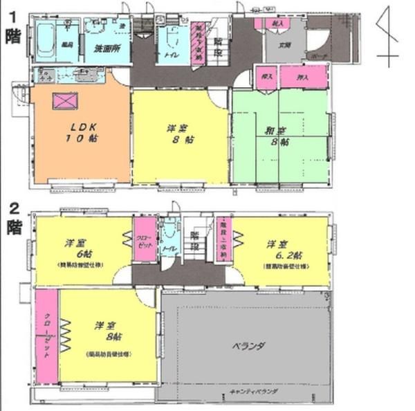
間取り 築年月
千葉県鎌ケ谷市くぬぎ山 115.53m2
231.90m2
5LDK 2009/04

物件基本情報

物件種目 中古一戸建て
物件名称 鎌ケ谷市くぬぎ山3丁目
所在地 千葉県鎌ケ谷市くぬぎ山
交通
京成電鉄松戸線 くぬぎ山駅 徒歩8分
北総鉄道 大町駅 徒歩10分
階数 2階建
建物構造 軽量鉄骨造
建ぺい率/容積率 60% / 200%
駐車場
学校 西部小学校 / 第三中学校
センチュリー21ベストランド
Tel047-456-3031
お気軽にお問い合わせください。

周辺地図

地図を表示中...
ストリートビュー未対応エリアです。

物件詳細情報

物件用途 居住用 地目 宅地
間取り詳細 - 都市計画 市街化区域
建物向き - 用途地域 第一種住居地域
土地面積基準 実測 接道 公道 北 幅員4m
公道 東 幅員4m
土地権利 所有権 私道面積 -
借地条件 - 道路位置指定 -
地代 - 不適合接道 -
建築確認番号 - セットバック -
現況 空家 国土法届出 不要
引渡時期 相談 取引態様 仲介
設備その他 -
特記事項 -
備考 -
公開日 2025/11/14 広告有効期限 2025/11/28
電話でお問い合わせ
センチュリー21ベストランド 店舗情報
[所在地] 千葉県船橋市芝山2-2-1-101
[営業時間] 9:00~18:00
Tel047-456-3031
お気軽にお問い合わせください。