習志野市東習志野8丁目(売買 土地) | 習志野市東習志野 | 千葉県船橋市・首都圏エリアの不動産売買・住宅情報はセンチュリー21 ベストランド

習志野市東習志野8丁目 | 習志野市東習志野の不動産物件

●「建築条件なし」お好きなハウスメーカーで建築できます! ●お好きな間取りで納得のプランニング!
【土地】 NEW! オススメ
価格 2,180万円
京成電鉄本線 八千代台駅 徒歩20分
スマホ表示
物件コード:087601-79757
所在地 坪単価 土地面積 建築条件
土地権利
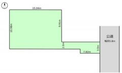
千葉県習志野市東習志野 35万円 205.98m2
(62.30坪)
なし
所有権

物件基本情報

物件種目 土地
物件名称 習志野市東習志野8丁目
所在地 千葉県習志野市東習志野
交通
京成電鉄本線 八千代台駅 徒歩20分
土地面積 205.98m2 (62.30坪)
建ぺい率/容積率 60% / 200%
地目 宅地
都市計画 市街化区域
用途地域 準工業地域
最適用途 -
学校 実花小学校 / 第四中学校
設備・条件
  • ガス:都市ガス
  • 汚水:公共下水
  • 水道:公営水道
センチュリー21ベストランド
Tel047-456-3031
お気軽にお問い合わせください。

周辺地図

地図を表示中...
ストリートビュー未対応エリアです。

物件詳細情報

物件用途 - 接道 公道 東 幅員5.8m
地勢 - 私道面積 -
土地面積基準 実測 道路位置指定 -
借地条件 - 不適合接道 -
地代 - セットバック -
現況 上物有 国土法届出 不要
引渡条件/時期 - / 相談 取引態様 仲介
設備その他 -
特記事項 -
備考 -
公開日 2025/11/25 広告有効期限 2025/12/09
電話でお問い合わせ
センチュリー21ベストランド 店舗情報
[所在地] 千葉県船橋市芝山2-2-1-101
[営業時間] 9:00~18:00
Tel047-456-3031
お気軽にお問い合わせください。